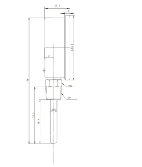
徑向型水高計結構圖
水高計也叫溫度壓力一體表,水高計是專門為熱水供熱系統、熱水鍋爐、游泳池等設備設計的,可以給出一個快速和準確的溫度指示。
徑向型安裝結構是現在最常用的一種水高計,牙頭尺寸、探桿長度、 溫度、壓力范圍 均可定制。
徑向型水高計:指針盤與保護管平行連接。下面我們來了解一下徑向型水高計的結構圖:


水高計產品特點:其簡便的安裝過程能夠有效的節約時間和開支。現場顯示溫度,直觀方便;安全可靠,使用壽命長,快速讀數。
此文關鍵字:水高計
森垚儀表最新產品
森垚儀表同類文章排行
- 雙金屬溫度計在安裝時需要注意哪些地方?
- 充油壓力表內部的油發白是怎么回事?
- 溫濕度計的使用注意事項
- 關于食品溫度計的知識
- ET400-2壓力式溫度計介紹
- 雙金屬溫度計能不能微調?
- 充油表漏油的原因是什么?
- 美國用萬向型雙金屬溫度計護片和歐洲用的護片有什么不一樣?
- 微壓表在檢驗時遇到精度不準的情況該怎么辦?
- 如何理解雙金屬溫度計的準確性?
森垚儀表最新資訊文章
您的瀏覽歷史







